eastern street scape
existing western street scape
western street scape
massing diagrams
what is water street?
aerial view of the building facade
unit arrangement
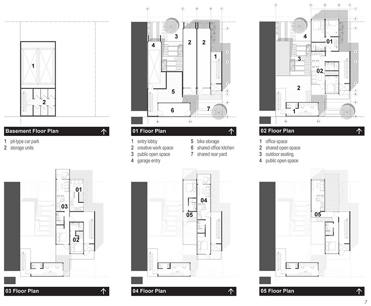
proposed plans
proposed exterior elevations
night view of the west approach and public space
proposed unit interior
<
>
11 - 11
Water Street Collective
Type:
Program:
Client:
Location:
Status:
Design Team:
Private commission
5 live/work units, commercial, open space
Water Street Collective
San Francisco, CA
Concept
Irving Gonzales, Jennifer Wichtowski, David Winslow
Related Projects
Water street is a mid-block alley in San Francisco’s North Beach neighborhood that represents what was once the 'water's edge'. With an existing community of designers, artists, and creatives, it features an established identity and sense of community.
The Water Street Collective project aims to capitalize on the spirit of the neighborhood, providing living, working, and public outdoor space for this creative community. This will include a new building beyond this concept, and street improvements to further enhance the walkability of this beloved street being designed as part of the companion Water Street Urban project.
The use of re-purposed shipping containers used for this conceptual design hearkens to the City’s harbor heritage as well as to the identity of Water Street. The use of modular building materials in the final design now underway will contribute to the storytelling of the Water Street and its development over time.
Water Street Urban